Buildable Construction Drawings - Arch Limited

Buildable Construction Drawings That Leave No Doubt

Our detailed drawings reduce RFIs, mitigate site errors, and give contractors the confidence to build right the first time.

Introduction

Accurate construction drawings are the bridge between design and delivery. At ARCH LIMITED, we prepare clear, coordinated, and code-compliant documents that minimize risks on site and save both time and cost.

Introduction Image

Deliverables We Provide

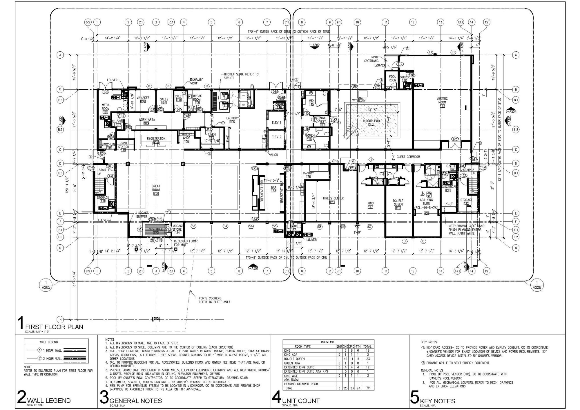
Floor plans, elevations & sections
Detailed construction drawings
MEP coordination sheets
Shop drawings for fabrication
As-built drawings and revisions

Quality Standards

Building Codes

Compliance with local building codes / ISO standards

Clash Detection

Clash detection using Revit + Navisworks

Peer Reviews QA

Peer reviews & QA process before delivery

Why Clients Choose Us

Value Proposition
Reduce errors during construction
Save costs by minimizing site revisions
Ensure coordination among all stakeholders

Want to see the difference?

👉 Request a Sample Drawing Pack